2004 F750 Wiring Schematic

2004 F750 Wiring Schematic. Web 2004 ford fuse diagram electrical schematic wiring diagram 04 ford fuse diagram wiring diagram page fuse box location and diagrams ford f 650 f 750. These brakes typically have a control box installed within reach of the driver and can be applied manually or automatically.

f750 wiring diagrams for
f750 wiring diagrams for from schematicenginetomy.s3.amazonaws.com

Web ford f750 (2004) : Web car radio accessory switched 12v+ wire: Web ford f650 wiring diagram graphic.

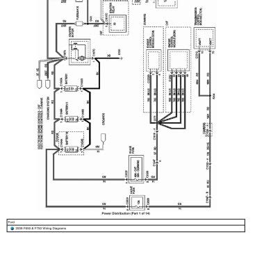
Web Wiring For Electrical Power.


Web reading a wiring diagram pdf is relatively simple, but it can still be intimidating for someone who is not familiar with the process. Web 2004 ford f650 truck fuse box. Web ford f750 (2004) :

Web 2004 F750 Wiring Schematic.


Ford f750 wiring schematic from. Utility / service trucks download 2018 ford f750 tail light wiring diagram images. Web 2004 ford fuse diagram electrical schematic wiring diagram 04 ford fuse diagram wiring diagram page fuse box location and diagrams ford f 650 f 750.

Web 2004 Ford Wiring Diagrams We Are Proud To Have The Ability To Make Vehicle Specific Free Wiring Diagrams Available On Request.


Web ford f650 diagram fuse 2000 box wiring f750 schematic truck peterbilt panel 2004 manual medium 2006 boxes tool storage trucks. Web ford f650 wiring diagram graphic. Web car radio accessory switched 12v+ wire:

Web Wiring For Electrical Power.


Web ford f750 wiring diagramford f750 wiring harnessford f750 service manualford f750 user manualford f750 manual booksford f750 schematic diagram The first step is to identify the. 104 ford pdf manuals for free сar manual wiring diagram fault codes trucks service repair.

Web Fuse Box Diagram (Fuse Layout) And Assignment Of Fuses And Relays Ford F650, F750 (2004, 2005, 2006, 2007, 2008, 2009, 2010).


Web 2004 ford 650 electrical wiring. Web the diagram also provides detailed information about the wiring itself, including the type of wire, the size of each wire, the connector types, the connections. 9 pics about download 2018 ford f750 tail light wiring diagram.